物件詳細 売買_【建物】共同住宅
| 整理番号 | 8228 | ||
|---|---|---|---|
| 種類 | 建物 | 種目 | 共同住宅 |
| 所在地 | 茨城県水戸市大工町3丁目 | ||
| 交通 | JR常磐線「水戸」駅~約3.5km バス約8分. 「大工町3丁目」(茨交)バス停~徒歩約1分 | ||
| 価格 | 2億3,830万円 | 単価 | 140.57万円 |
| 土地面積 | 560.38m² | 土地坪 | 169.52坪 |
| 建物面積 | 473.88m² | 建物坪 | 143.35坪 |
| 区域 | 市街化 | 地目 | 宅地 |
| 最適用途 | 用途地域 | 近隣商業地域・第4種高度地区・準防火地域 |
|
| 建ぺい率 | 80% | 容積率 | 200% |
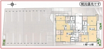
| 建物構造 | 共同住宅 鉄骨造 陸屋根3階建 | 名称 | |
| 総戸数 | 9 | 土地権利 | |
| 小学校 | 新荘 | 中学校 | 水戸一 |
| 間取り | 2LDK・1LDK | 築年月 | R7.8 |
| 道路 | 南側:国道 巾約20mn北側:市道 巾約6m | ||
| 現状 | 新築 空 | 引渡し | 現況 |
| 施工会社 | 大和ハウス工業㈱ | 管理形態 | |
| 電気 | 東京電力 | 上水道 | 公営 |
| 下水道 | 公共下水 | ガス | 都市ガス |
| 駐車場 | 形態 | 業者(仲介) | |
| セールスポイント | 国道南面、小中学校・大型病院・バス停近い新築共同住宅 |
||
| 備考 | *2LDK3戸・1LDK3戸 全9戸、満室時見込み賃収入1,040万円.メーカー一括借り上げ制度あり.*本件売主との提携販売に付き仲介料はかかりません.建築確認番号第2024CA‐1485H.*価格は消費税込み. |
||
| 情報登録日 | 2025年10月20日 | 更新予定期限 | 2026年02月02日 |
※物件掲載内容と現況に相違がある場合は現況を優先と致します。






注目物件